Proje Adı: SASBAŞ (Samsun Serbest Ticaret Bölgesi Yapımı)

Ülke: TÜRKİYE

Finans Kaynağı: Özel Sektör

Etiketler: Türkiye, Yerel, Üst yapı, tasarım

 

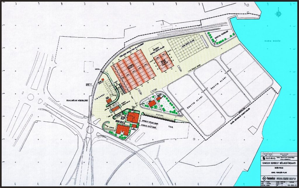
Projenin konusu, Türkiye’nin başlıca ticaret merkezlerinden Samsun’da 75 000 m2’den fazla bir alanda yapılacak olan “SASBAŞ-Gümrük Serbest Ticaret Merkezinin” bütün mimari ve yapı tasarımlarının hazırlanmasıdır. Samsun Serbest Ticaret Bölgesi içerisinde 5000 m2’lik depo; ofis, banka ve iş merkezlerini kapsayan toplam 1150 m2’lik 35 adet bina ve müştebilatı; 6000 m2’lik açık have depo alanı ve 26000 m2’lik üretim tesisi bulunması tasarlanmıştır.

Proje kapsamında Temelsu tarafından gerçekleştirilen hizmetler:
• Proje alanı ve çevresinin ayrıntılı araştırılması ve genel yerleşim, drenaj ve atıksu sistemi, yol ve kavşak projelerinin yerleştirileceği yaklaşık 200 000 m2’lik alanın 1/500 ölçekli haritasının hazırlanması
• Yapım yerinin, 2.0 m derinlikteki organik çamur ile onun altında 1.5-4.0 m değişen derinlikteki sıkışmış kum tabakalarından oluşan tahmini 50 yıllık bir dolgu alanı olması nedeniyle jeolojik ve jeoteknik araştırmalarının yapılması
• Aşağıda sıralanan üstyapının genel yerleşimi ve mimari tasarımı:
– Gümrük Binası: 2 katlı, 830m2
– SASBAŞ Genel Müdürlük Binası: 2 katlı, 874 m2
– Depo Binası: 9m yükseklikte, 5000 m2
– Ofis Binası: 9m yükseklikte, 1125 m2
• Yukarıda adı geçen binaların statik ve dinamik analizleri, kesin ve uygulama projelerinin hazırlanması. Dinamik analiz ve yapı (statik) tasarımında, yeni Sismik Tasarım Standardı kullanıldı. Kaynama ve zemin dayanma sınırı sorunlarının üstesinden gelmek ve 9m’lik önceden dökülmüş beton çerçevenin yatay hareketini önlemek için yoğun çaba harcandı.

Bir cevap yazın

E-posta hesabınız yayımlanmayacak. Gerekli alanlar * ile işaretlenmişlerdir